Przestronny apartament w Wilanowie | duża loggia

Mieszkanie na sprzedaż
2 295 000,00 PLN, Pow. 100,05 m2
Drukuj ofertę
Drukuj ofertę
Typ nieruchomości:
Mieszkanie
Powierzchnia:
100,05 m2
Typ transakcji:
sprzedaż
Liczba pokoi:
4
Lokalizacja:
Warszawa Wilanów , Aleja Rzeczypospolitej
Rok budowy:
2019
Piętro:
1 na 4
Numer oferty:
34964532903
Cena za m2:
22 938,53 PLN
PRZESTRONNY APARTAMENT W WILANOWIE Z DUŻĄ LOGGIĄ

Nowoczesny styl życia | Komfort i przestrzeń | Cisza i bezpieczeństwo | Luksusowe detale | Praktyczne udogodnienia



******

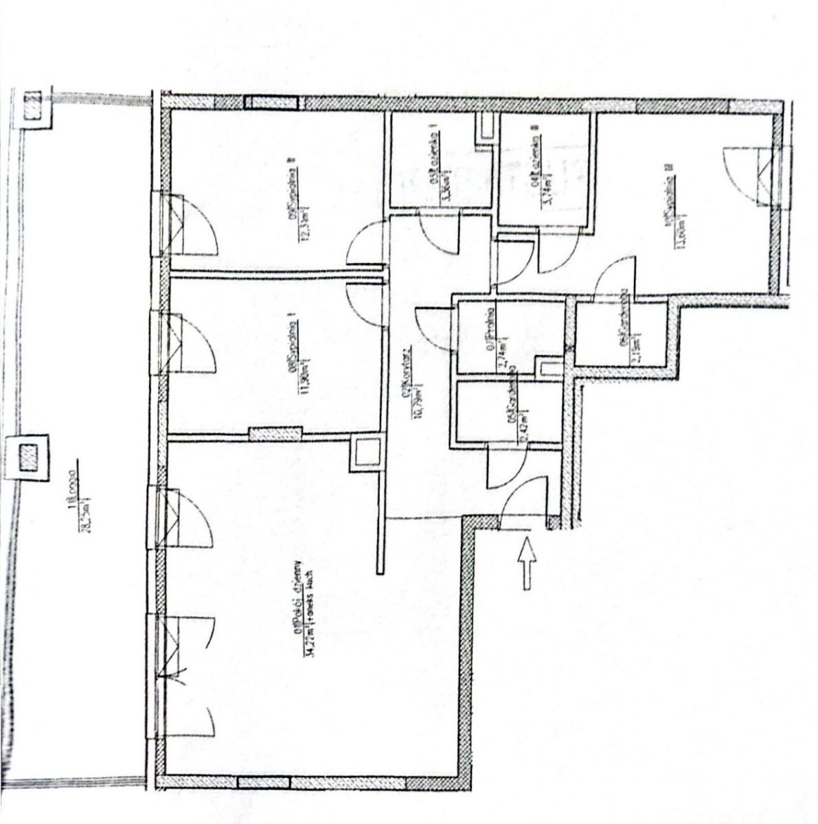
ROZKŁAD POMIESZCZEŃ:

*.  Salon z aneksem kuchennym ma powierzchnię 35 m² i jest doskonale doświetlony dzięki
    dużym oknom.
*   Główna sypialnia (15 m²) znajduje się od strony patio i oferuje prywatną łazienkę z
     prysznicem (3,5 m²) oraz wygodną garderobę (2,5 m²).
*.  Dwie dodatkowe sypialnie (po 12 m² każda) znajdują się od strony drogi przeciwpożarowej,        zapewniając spokój i prywatność.
*.  Łazienka z wanną ma 3,5 m², a pomieszczenie gospodarcze - pralnia o powierzchni 2,5 m² -
     może zostać zaadaptowane na dodatkową toaletę.
*.   Bardzo przestronna loggia (27 m²) jest dostępna z salonu oraz dwóch sypialni i stanowi             idealne miejsce do relaksu na świeżym powietrzu. Dodatkowo przy wejściu do mieszkania
     znajduje się garderoba (2 m²), zapewniająca praktyczne miejsce do przec

STANDARD:

Apartament został starannie zaprojektowany przez architekta, łącząc funkcjonalność z najwyższym komfortem. Wnętrza wykończono materiałami najwyższej jakości, a elegancka, ponadczasowa deska dębowa nadaje przestrzeni wyjątkowego charakteru.
Przestronny salon, rozświetlony trzema dużymi oknami, harmonijnie łączy się z nowoczesną kuchnią, a dostęp do obszernej loggii pozwala cieszyć się chwilami relaksu w otoczeniu świeżego powietrza.
Główna sypialnia stanowi prywatną enklawę - z własną łazienką oraz przestronną garderobą, zapewniającą maksimum wygody.
Kuchnia została wyposażona w sprzęt AGD renomowanych marek. Liczne pojemne szafki i funkcjonalne rozwiązania przechowywania łączą elegancję z praktycznością. Apartament położony jest w wyjątkowo spokojnej lokalizacji - okna wychodzą zarówno na zielone patio, jak i na drogę przeciwpożarową, po której nie poruszają się samochody, co zapewnia ciszę i komfort.

LOKALIZACJA:

Apartament położony jest w prestiżowej dzielnicy Wilanów, w pobliżu licznych renomowanych szkół publicznych i międzynarodowych oraz przedszkoli i żłobków, co czyni tę lokalizację idealną dla rodzin.
Okolica sprzyja aktywnemu stylowi życia - w sąsiedztwie znajdują się baseny, korty tenisowe, trasy rowerowe oraz słynny Pałac Królewski w Wilanowie.
Bliskość restauracji, kawiarni, sklepów wielkoformatowych i punktów usługowych zapewnia wygodę codziennego życia, a dogodne połączenia komunikacyjne - autobusy, tramwaje i szybki dostęp do południowej obwodnicy Warszawy - umożliwiają sprawne przemieszczanie się po mieście.

DODATKOWE INFORMACJE:

Do mieszkania przynależy murowana komórka lokatorska o powierzchni 3 m² oraz dwa miejsca postojowe w garażu podziemnym na jednej platformie. Komórka oraz miejsca parkingowe są dostępne za dodatkową opłatą - odpowiednio 30 000 zł za komórkę i 60 000 zł za każde miejsce parkingowe.
Dodatkowo mieszkańcy mają do dyspozycji rowerownie oraz wózkownie usytuowane bezpośrednio przy klatce, co zapewnia wygodę i bezpieczeństwo codziennego użytkowania.

 SERDECZNIE ZAPRASZAM NA PREZENTACJĘ.
Nieprawidłowy adres E-mail