Klimat przedwojennej Warszawy – kamienica z duszą

Mieszkanie na sprzedaż
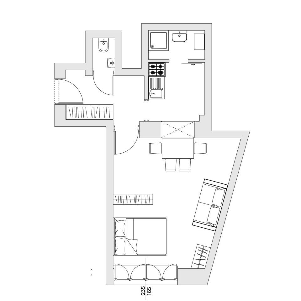
568 000,00 PLN, Pow. 32,44 m2
Drukuj ofertę
Drukuj ofertę
Typ nieruchomości:
Mieszkanie
Powierzchnia:
32,44 m2
Typ transakcji:
sprzedaż
Liczba pokoi:
1
Lokalizacja:
Warszawa Wola Młynów , Wolska
Rok budowy:
1925
Piętro:
1 na 4
Numer oferty:
34964535913
Cena za m2:
17 509,25 PLN
Wyobraź sobie, że budzisz się w miejscu, gdzie historia spotyka się z rytmem miasta. Kamienica, w której zachowano przedwojenną duszę, a jednocześnie zapewniono komfort codziennego życia. Mieszkanie przy ul. Wolskiej to przestrzeń dla tych, którzy cenią autentyczność, świetną lokalizację i kameralny klimat starej Warszawy.

Idealna propozycja dla inwestora, singla lub pary szukającej klimatycznego mieszkania w centrum miasta.

ADRES: ul. Wolska 82, Warszawa - Wola

ATUTY NIERUCHOMOŚCI:
Kamienica z historią - unikatowa architektura, solidne mury, przedwojenny klimat
Oryginalna dębowa klepka - po renowacji, w doskonałym stanie, dodaje wnętrzu szlachetności i charakteru
Pierwsze piętro - najchętniej wybierane w tego typu zabudowie, łączy wygodę i dostępność
Stan do wykończenia - przestrzeń do stworzenia mieszkania dokładnie według własnego pomysłu
Piwnica w cenie
Kameralne sąsiedztwo i zamykane podwórko
Fantastyczna komunikacja - tramwaj i autobus tuż pod kamienicą, 450 m do metra Płocka
Centrum miasta w zasięgu 10 minut metrem

STAN PRAWNY: Pełna własność - możliwy zakup na kredyt

MIESZKANIE:
32,44 m² - optymalny metraż dla singla, pary lub inwestora
Kuchnia i łazienka do własnej aranżacji - pozwalają dopasować wnętrze do stylu życia
Ekspozycja południowo-zachodnia - naturalne światło i ciepły klimat wnętrza
Wysokie sufity charakterystyczne dla kamienic - poczucie przestrzeni i elegancji

BUDYNEK:
Kamienica z 1925 roku położona w sercu Woli, wśród zieleni i miejskiej zabudowy. Zachowana przedwojenna fasada i solidne mury gwarantują niepowtarzalny klimat. Niska zabudowa i pierwsze piętro zapewniają komfort codziennego użytkowania.
Miejsca postojowe na podwórku (wjazd przez bramę na pilota). Możliwość parkowania w strefie dzięki abonamentowi mieszkańca ZDM.

OKOLICA:
Piekarnia Grzybki i Żabka w tym samym budynku
Auchan - 2 min spacerem
Biedronka - 7 min spacerem
Siłownia - 1 min spacerem
Centrum miasta - 10 min metrem
Park Edwarda Szymańskiego - 10 min spacerem

Nie zwlekaj! Ta lokalizacja jest bardzo wyjątkowa.
Otwórz drzwi do miejsca z charakterem - umów się na prezentację.

Nieprawidłowy adres E-mail